Concept Design
Once a preferred site or building has been selected and the brief for Bairns Hoose fully clarified, the design team should be commissioned to produce sketch proposals to address the various aspects set out in the client’s brief. The intention is to settle on outline drawings, sometimes called final sketch plans, which will form the basis for the more detailed design. These are presented to the client group for approval and ideally would also be discussed with the local authority planning department to ensure that any proposals do not go against local policy. This is particularly important in the case of any change of ‘class use’ where, for example, a residential building is proposed to change to a commercial or office use, as was the case for the Children First North Strathclyde Bairns Hoose.

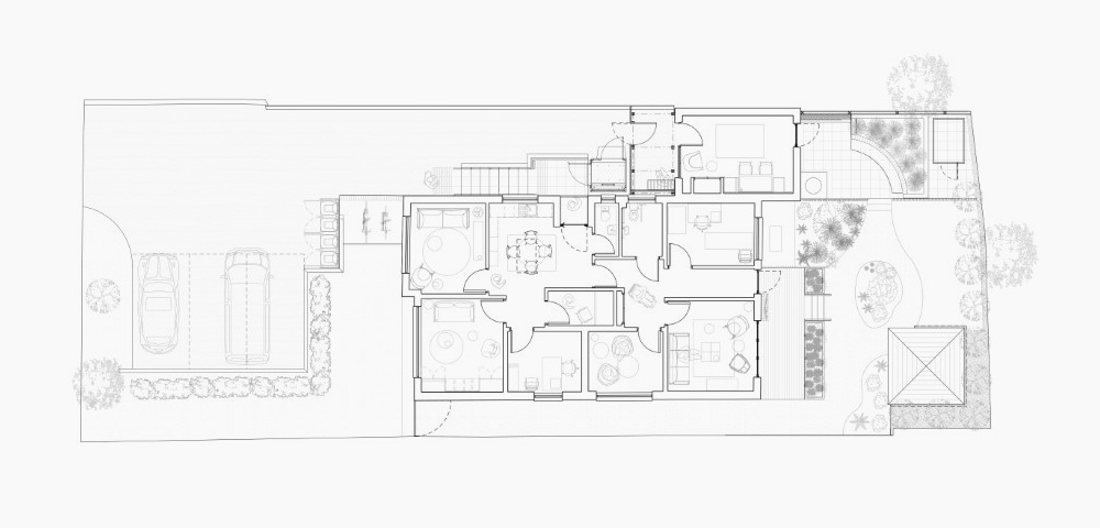
This drawing illustrates the sketch design proposals for the conversion and extension of the bungalow in North Strathclyde to create the Bairns Hoose, showing parking to the front and a secluded garden to the rear.
One of the few negatives of the selected site for the Children First North Strathclyde Bairns Hoose was that it was on a sloping site. The building was set approximately 1m above ground level and was accessed via a set of steps. Although the elevation meant that the accommodation was more private, it presented challenges for accessibility. At sketch design stage various options were explored including the installation of a long ramp, wrapping around three sides of the building to allow access for wheelchair users and those with limited mobility. This was discounted because it was felt to be important that all visitors should have the opportunity to enter the building through the same front door. To address this, a new external platform lift was installed. While this dealt with the accessibility challenges a level site would have been better and avoided the expense and ongoing maintenance of having a lift on the site.